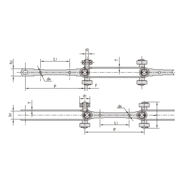
dubbel ledad transportörkedja med universell rörelsetransport

Dubbel ledad transportörkedja är en mekanisk anordning som består av två parallella och synkroniserade rörliga kedjor. Varje kedja består av ett antal kopplingslänkar som är förbundna med gångjärn.

Beskrivning

Den dubbelartikulerade transportörkedjan är konstruerad för hög flexibilitet och lastanpassning. Dess unika struktur gör att kedjan kan rotera flexibelt under belastningstryck och stötar, vilket gör den lämplig för olika arbetsförhållanden och belastningskrav.

Egenskaper

  • Flexibilitet:Varje länk är ansluten med gångjärn, vilket ger kedjan utmärkt flexibilitet för att anpassa sig till olika böjnings- och vridningsmiljöer.
  • Lastbärande kapacitet:Rullarna roterar på härdade stift och hylsor, vilket gör att kedjan kan motstå högt tryck och stötar för tillförlitlig drift under tunga förhållanden.
  • Synkronisering:Två parallella kedjor rör sig synkront, vilket säkerställer stabilitet och effektivitet vid materialtransport.
  • Anpassningsbarhet:Kedjans stigning kan justeras för att uppfylla olika arbetskrav för olika applikationer.

Användningsområden

  • Används ofta inom industriella områden som materialhantering och transmission i produktionslinjer.
  • Idealisk för komplexa arbetsmiljöer och transportbehov som kräver både flexibilitet och styrka.
Tekniska parametrar

tekniskt bord för dubbel gångjärnsförsedd transportörkedja

teknisk tabell för dubbel gångjärnsförsedd transportörkedja